
- Mudel: VK-SPAF
- Mõõtmisviis: tigu mõõtmine ja söötmine
- Kaaluvahemik: 50-500g
- Täpsus: 2%
- Kiirus: 10-30 pudel/min
- Pinge: 220 V (kohandatav)
- Punker: 25L
- Täitedüüsid: 10mm (teine 15mm, 18mm, 20mm, 25mm)
- Võimsus: 1,2 kW
- GN kaal: 230/200kgs
- Mõõdud: 800×850×2000mm
See pulbertäitmismasin on täielikult valmistatud roostevabast terasest, täitesüsteemi juhib servomootor ja segamismootori jaoks kasutatakse Taiwanist valmistatud hooldusvaba reduktorit, tootekapp on täielikult suletud, siibri õhurõhu juhtseade, valmistatud roostevabast terasest teras ja klaas. Tolmueemaldusseade on paigaldatud täitetoru suudmesse, mõeldud korduvkasutatavale töölaua kõrgusele reguleeritav, laua all on jäätmetoodete sahtel.
Beebitalgipulbri poolautomaatsete täitmismasinate peamised omadused


Valmistatud roostevabast terasest: täielikult kohanduvad GMP või muu söövitavate kemikaalide pakkimiseks sobiva toidu sanitaarsertifikaadi nõuetele;
Täitmise parem stabiilsus ja suurem kaalumistäpsus;
Täitesüsteemi juhib samm-mootor, kõrge täpsus, kõrge pöördemoment, pikk tööiga ja seadistatav pöörete arv;
Mootori segamiseks kasutatakse Taiwanist valmistatud hooldusvaba reduktorit: madal müratase, pikk kasutusiga, hooldusvaba kogu eluiga;
Mõeldud töötingimustele, mida saab igal ajal muuta;
Max.10 retsepti saab salvestada hilisemaks kasutamiseks;
Kontaktmaterjali teras on toidutüüpi roostevaba 304;
Tootekapp on täielikult suletud, niiske õhurõhuga kontrollitud ja valmistatud roostevabast terasest klaasist, toote liikumine kapis on ühe pilguga selge, pulbrit ei leki, täitetoru suudmesse paigaldatud tolmueemaldusseade viib puhta taimekeskkonnani;
Lisatarvikuid vahetades sobib masin mitme toote jaoks, olenemata ülipeenest võimsusest või suurtest teradest.
Tigu mõõtmise söötmispulbri täitmismasina spetsifikatsioon
| Mudel | VK-SPAF |
| Mõõtmisviis | Tigude mõõtmine ja söötmine |
| Kaaluvahemik | 50-500g |
| Täpsus | 2% |
| Kiirus | 10-30 pudel/min |
| Pinge | 220 V (kohandatav) |
| Punker | 25L |
| Täiteotsikud | 10mm (teine 15mm, 18mm, 20mm, 25mm) |
| Võimsus | 1,2 kW |
| GN kaal | 230/200 kg |
| Suurus | 800×850×2000 mm |
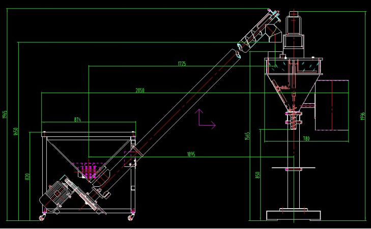
Pulbertäitmismasina illustratsioon


Üksikasjad


Lifti kruviga etteandematerjalide laadimine ja söötja

Paigaldamine materjalide etteandmiseks ja laadimiseks
Kahe suuna lüliti; edasi/tagasi pöörlemine vastavalt materjalide söötmiseks ja materjalide mahalaadimiseks alumisest väljalaskeavast.
Reduktori võlli sidurit ei saa blokeerida. Pärast paigaldamist peab võlli sidur olema tõmbe ja painduv, et vältida mootori ülekoormusest tulenevaid põletuskahjustusi. Paigaldamise ajal saab äärikupolti õigesti reguleerida.
Tigu tihvti otsa ei tohi kunagi liiga pingul fikseerida, et pöörlev tigu ei puudutaks painutatud teo tõttu toru seina. Tihvti kinnitamiseks keerake mutter kinni. Seda tuleb arvestada iga kord, kui tigu puhastamiseks ja uuesti paigaldamiseks välja tõmmatakse.
Lifti mahu ja kõrguse saab integreerida pakkimismasinaga jadainduktsiooni abil. Elevaatorist ei tule söödamaterjale ilma paagis olevate materjalideta.
Lifti liigend töötab pulbri täitmismasinaga, automaatse etteande ja seiskamisega.
Lifti tehniline parameeter

| Helitugevuse ülekandmine | 1 milj3/Tund (integreeritud täitemasinaga) |
| punker | 100L |
| Kõrguse tõstmine | 2000 mm |
| Mootori võimsus | 1,5 kW |
| Toitevõimsus | 380V/50-60Hz |
| Kõrgus punkri ja maapinna vahel | 800-900 mm |
| Mootori mark | Juuli |
| Punkri materjalid | SS304, paksus 1,50 mm |
| Toru söödamaterjali ülekandmiseks | SS304, läbimõõt: 103 mm, paksus: 3,00 mm |
| Auger | SS304, paksus 3,00mm |
| Võll | SS304, läbimõõt 35mm |
| Kaal | 150 kg |
| Suurus | 1900 * 880 * 2100 mm (kohandatav) |
Garantii: Kogu masinale kehtib garantii 1 aasta. (Garantii alla ei kuulu probleemid, mis on põhjustatud õnnetustest, väärkasutusest, väärkasutamisest, ladustamiskahjustustest, hooletusest või seadme või selle komponentide muutmisest. Samuti ei kuulu garantii alla kergesti purunev varuosa)
Paigaldamine: Kui masin on teie tehasesse jõudnud, läheb meie tehnik teie juurde, et paigaldada ja testida masinat ning koolitada teie töötaja masinaga töötama (rongi aeg sõltub teie töötajast). Kulud (lennupilet, toit, hotell, reisitasu teie riigis) peaksid olema teie kontol ja peate tasuma tehnikule 150 USD päevas. Samuti võite minna meie tehasesse koolitust tegema.
Pärast teenindust: Kui teil tekib probleem masinal, läheb meie tehnik teie juurde, et masin võimalikult kiiresti parandada. Maksumus peaks olema teie kontol (nagu ülalpool).









